2022年1月28日 星期五

(RH9-參考) martian source 火星連線

這就是所謂的逆向路徑過濾 (Reverse Path Filtering)
這個情形常發生在兩個網段共存的linux 主機上

其實是無害的
如果一直跑出來
可以選擇關掉它
 

解決方法 :
 
一、取消 log_martians
echo 0 > /proc/sys/net/ipv4/conf/all/log_martians

二、或是關掉rp_filter

1.清空 rp_filter
echo 0 >/proc/sys/net/ipv4/conf/eth1/rp_filter
注意:
eth1 為log檔內那個 device ,不可打錯
PS. 若為 pppoe撥接:
echo 0 >/proc/sys/net/ipv4/conf/ppp0/rp_filter

2.另外我們還要關掉 rp_filter
vi /etc/sysctl.conf
net.ipv4.conf.default.rp_filter=0
 
3. 重置網路
/etc/rc.d/init.d/network restart
PS. 若為 pppoe撥接連線. 此命令會斷開撥接連線..; 不如直接 reboot 好了

2022年1月23日 星期日

(Xampp) 關閉 XAMPP 的 https 服務

1) 叫出 [XAMPP Control Panel] 後,
2) 編輯: Apache -> [Config] -> Apache (httpd-ssl.conf)
找到: Listen 443
改成: # Listen 443
存檔
3) 重啟 Apache後, 即可見到 port 443 沒再開啟了
Apache -> [Stop]
Apache -> [Start]

(RH9-參考) SAMBA ACL

SAMBA ACL
作者:damon
 
1.Samba 要做Acl 不一定要有LDAP
2.File system ACL功能一定要支援
3.Samba ACL 功能要開
4.可在Samba中作多重User的權限控制,但沒法作"讓某一位User新增檔案後
,就不能刪檔案"的功能
5.但可做到可變更自己新建的檔案或目錄,但不能刪除他人的,就算完全控制也沒用,在目錄中加上 Sticky bit。當然也不用ACL來控制也可
 
以下範例 : User sky 在/test 可新增但不能刪其他目錄、User kevin
可在/test完全 控制包含sky建立的檔案目錄

#chmod -R 1777 /test
[test]
path = /test
browseable = yes
public = yes
writable = yes
valid users = sky,kevin
write list = sky,kevin
admin users = kevin
force create mode = 1777
force directory mode = 1777
 
如此kevin 都可完全控制/test中的權限(因為它是主管)
sky 卻不能刪kevin建立的檔案

2022年1月19日 星期三

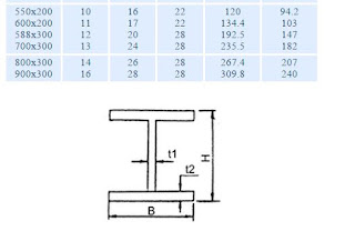
(建房) 鋼構材料

鋼構材料

(建房) 室內設計常用尺寸

1.設計的基本尺寸(單位:公分)
A.衣櫥:深度一般60~65;推拉門:70,衣櫥門寬度:40~65
B.推拉門:75~150,高度:190~240
C.矮櫃: 深度:35~45,櫃門寬度:30-60
D.電視櫃:深度:45-60,高度:60-70
E.單人床:寬度:90,105,120;長度:180,186,200,210
F.雙人床:寬度:135,150,180;長度180,186,200,210
G.圓床: 直徑:186,212.5,242.4(常用)
H.室內門:寬度:80-95,醫院120;高度:190,200,210,220,240
I.廁所、廚房門:寬度:80,90;高度:190,200,210
J.窗簾盒:高度:12-18;深度:單層布12;雙層布16-18(實際尺寸)
K.沙發:單人式:長度:80-95,深度:85-90;坐墊高:35-42;背高:70-90
L.雙人式:長度:126-150;深度:80-90
M.三人式:長度:175-196;深度:80-90
N.四人式:長度:232-252;深度80-90
O.茶几:
a.小型,長方形:長度60-75,寬度45-60,高度38-50(38最佳)
b.中型,長方形:長度120-135;寬度38-50或者60-75
c.正方形: 長度75-90,高度43-50
d.大型,長方形:長度150-180,寬度60-80,高度33-42(33最佳)
e.圓形:直徑75,90,105,120;高度:33-42
f.方形:寬度90,105,120,135,150;高度33-42
P.書桌:
a.固定式:深度45-70(60最佳),高度75
b.活動式:深度65-80,高度75-78
c.書桌下緣離地至少58;長度:最少90(150-180最佳)
R.餐桌:
a.高度75-78(一般),西式高度68-72,一般方桌寬度120,90,75;
b.長方桌寬度80,90,105,120;長度150,165,180,210,240
c,圓桌:直徑90,120,135,150,180
d.書架:深度25-40(每一格),長度:60-120;下大上小型下方深度35-45,高度80-90
S.活動未及頂高櫃:深度45,高度180-200
T.木隔間牆厚:6-10;內角材排距:長度(45-60)*90
 
2.室內常用尺寸
A.牆面尺寸
a.踢腳板高:80—200mm。
b.牆裙高:800—1500mm。
c.掛鏡線高:1600—1800(畫中心距地面高度)mm。
B.餐廳
a.餐桌高:750—790mm。
b.餐椅高;450—500mm。
c.圓桌直徑:
i.二人500mm
ii.三人800mm
iii.四人900mm
iV.五人1100mm
V.六人1100-1250mm
Vi.八人1300mm,十人l500mm,十二人1800mm。
d.方餐桌尺寸:二人700×850(mm),四人1350×850(mm),八人2250×850(mm)
e.餐桌轉盤直徑;700—800mm。
f.餐桌間距:(其中座椅佔500mm)應大於500mm。
g.主通道寬:1200—1300mm。
h.內部工作道寬:600—900mm。
i.酒吧台高:900—l050mm,寬500mm。
j.酒吧凳高;600一750mm。
 

3.商場營業廳
A.單邊雙人走道寬:1600mm。
B.雙邊雙人走道寬:2000mm。
C.雙邊三人走道寬:2300mm。
D.雙邊四人走道寬;3000mm。
E.營業員櫃檯走道寬:800mm。
F.營業員貨櫃檯:厚600mm,高:800—l 000mm。
G.單靠背立貨架:厚300—500mm,高:1800—2300mm。
H.雙靠背立貨架;厚;600—800mm,高:1800—2300mm
I.小商品櫥窗:厚:500—800mm,高:400—1200mm。
J.陳列地台高:400—800mm。
K.敞開式貨架:400—600mm。
L.放射式售貨架:直徑2000mm。
M.收款台:長:1600mm,寬。
 

4.飯店客房
A.標準面積:大:25平方米,中:16—18平方米,小:16平方米。
B.床:高:400—450mm,床靠高:850—950mm。
C.床頭櫃:高500—700mm;寬:500—800mm。
D.寫字檯:長;1100—1500mm;寬450—600mml高700—750mm。
E.行李台,長9l0—1070mm寬500mm高400mm。
F.衣櫃:寬:800—1200mm高1600—2000mm深500mm。
G.沙發:寬:600一800mm高:350—400mm靠背高1000mm
H.衣架高:1700—1900mm。
 

5.衛生間
A.衛生間面積;3—5平方米。
B.浴缸長度;一般有三種1220、1520、1680mm;寬;720mm,高450mm。
C.坐便;750×350(mm)。
D.沖洗器:690×350(mm)。
E.盥洗盆:550×410(mm)。
F.淋浴器高:2100mm。
G.化妝台;長:1350mm;寬450 mm。
 

6.會議室
A.中心會議室客容量:會議桌邊長600(mm)。
B.環式高級會議室客容量;環形內線長700—l 000mm。
C.環式會議室服務通道寬:600—800mm。
 

7.交通空間
A.樓梯間休息平台淨空:等於或大於2100mm。
B.樓梯跑道淨空:等於或大於2300mm。
C.客房走廊高;等於或大於2400mm。
D.兩側設座的綜合式走廊寬度等於或大於2500mm。
E.樓梯扶手高;850—1100mm。
F.門的常用尺寸:寬:850—1000mm。
G.窗的常用尺寸;寬;400—1800mm,(不包括組合式窗子)
H.窗檯高;800—1200mm。
 

8.燈具
A.大吊燈最小高度:2400mm。
B.壁燈高:1500—1800mm。
C.反光燈槽最小直徑:等於或大於燈管直徑兩倍。
D.壁式床頭燈高:1200—1400mm。
E.照明開關高:1000mm。
 

9.辦公傢俱
A.辦公桌:長:1200—1600mm:寬:500—650mm 5高;700—800mm。
B.辦公椅:高;400—450mm長×寬:450×450(mm)。
C.沙發:寬:600—800mm;高:350—400mm;靠背面:1000mm。
D.茶几;前置型:900×400×400(高)( mm);中心型:900x 900×400(mm)、
700×700×400(mm);左右型:600×400×400(mm)。
E.書櫃:高:1800mm,寬:1200—1500mm;深:450—500mm。
F.書架:高:1800mm 6寬:1000—1300mm ;深:350—450mm。

2022年1月15日 星期六

(Firefox) 拖慢效能的錯誤設定...

我用的是 Win XP下. 免安裝版的火狐; 常碰到軟體開啟很慢. 網頁開啟很慢. 硬碟跑不停. 火狐操作很卡..等等問題等問題!! 在不斷嚐試. 研究. 分析下, 原來這個設定也是個錯誤的選擇... (只是一般使用網路. 犯不著讓自己電腦不斷向 OCSP求證憑證有效性,  火狐的運行自然順暢些!! 合理吧!?)

[選項] -> [進階] -> [憑證] :
不要勾選 [向 OCSP 回應伺服器查詢, 以確認憑證有效性 ]

2022年1月6日 星期四

(Firefox) about:config 設置參考

節錄的網文內容. 真的參考就好!!
據我個人經驗. 真正的有效做法是:
把有關 remote. sync. share 這些關鍵字索引出來的 [真假值] 設定項目全部設為 False !!
 
~ 純個人心得. 請酌量服用 !!

(Centos-7s) 更新: 網卡名稱改回 eth0 的方法

將 CentOS 7 網卡名稱修改, 用回 Eth0 的方法:   1) # vi /etc/sysconfig/grub 內容大概是這樣:   GRUB_TIMEOUT=5 GRUB_DISTRIBUTOR="$(sed 's, release...